The building on the southeast corner of 3rd Avenue and Alder Street is known to many as the former location of the Ferndale Police Department. It is about to get a makeover which will result in a far different use.
Scot White and Jeff Lazzari are currently in the midst of creating Fringe Brewing at 5640 3rd Avenue.
White says they will be brewing beer onsite and offer several beers on tap including flagship brews with “Ferndale-ish” names like Jam IPA (Ferndale was formerly known as Jam, for a miles-long log jam on the Nooksack River) and Plaster Pale Ale (Plaster is one of the primary players in clearing the log jam). “This is your community and your brewery, we are going to be crafting Ferndale’s beer,” White said. “When our beers go out to other markets, we want those people to identify them with Ferndale.”
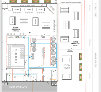
Plans are for food trucks to be parked outside next to a beer garden on the Alder Street side of the building. Customers will be welcome to bring whatever food they want while they enjoy the beers on tap.
Fringe Brewery site plan (July 9, 2018). Source: City of Ferndale
It will be a family-friendly venue and, along with the kids, the family pet will be welcome, White said. Non-alcoholic beverages will be available.
The current plan is for an October opening. “We are hoping for a few weeks of Indian summer so people can enjoy the outside beer garden this year,” White said.
Ferndale has a long history with breweries according to longtime Ferndale resident and brewer, Lloyd Zimmerman. Ferndale was the location of Whatcom County’s first brewery, according to Zimmerman, when he began Whatcom Brewery in 1992. Later, he opened a smaller brewery onsite at his business, Frank-n-Stein, formerly at 2030 Main Street.
Zimmerman said there were at least 2 other breweries in the Ferndale area since, including Lowefields on Kope Road and popular Bellingham-based Menace Brewing got their start on Portal Way in Custer.
Discover more from Whatcom News
Subscribe to get the latest posts sent to your email.


